Work
WHAT DRIVES US?
Contact
Work
WHAT DRIVES US?
Contact
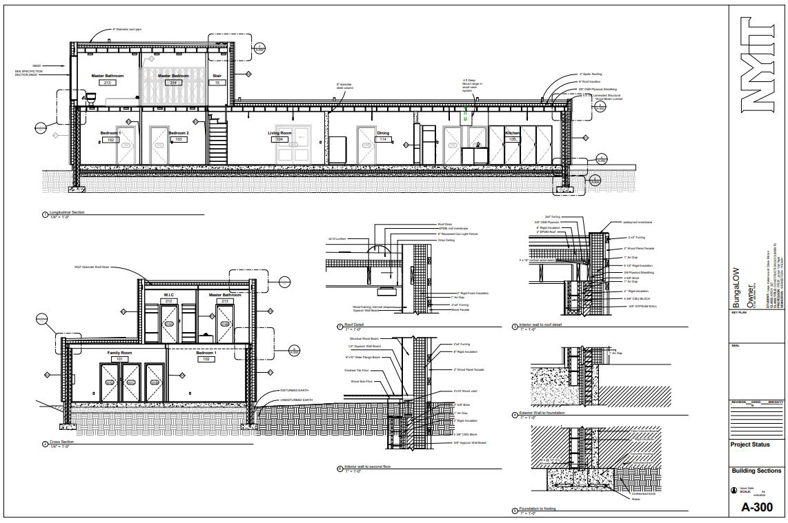
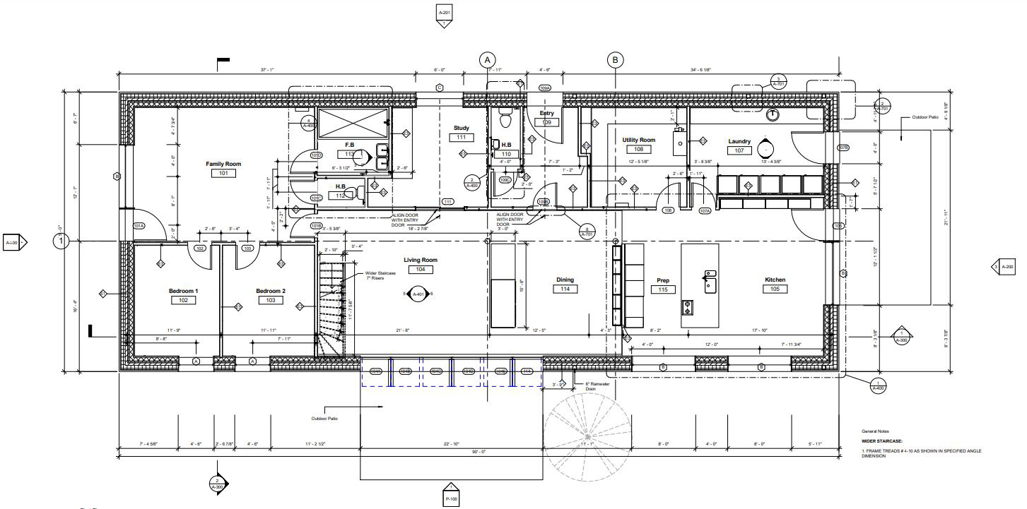
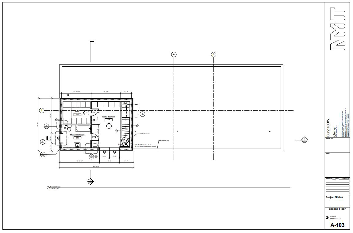
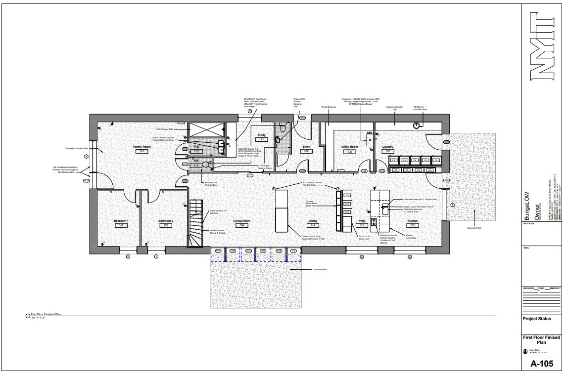
Construction Documentation
BUNGA LOW: URBAIN ARCHITECTENCOLLECTIEF
Sint-Denijs-Western, Belgium
Project Reference: Architects, David Nivelle, David Claus
You may also like
Design Competitions
2021
LANDSCAPE & URBAN DESIGN
2020
RENDERING PERSPECTIVES
2018
ART INSTALLATIONS
2017
RESIDENTIAL DESIGN
2019
Architectural Documentation
2022
↑
Back to Top