Work
WHAT DRIVES US?
Contact
Work
WHAT DRIVES US?
Contact
Architectural Documentation
DESIGN DEVELOPMENT & CONSTRUCTION DOCUMENTTION
Modifying existing residential properties into custom construction renovations.
BEFORE
AFTER
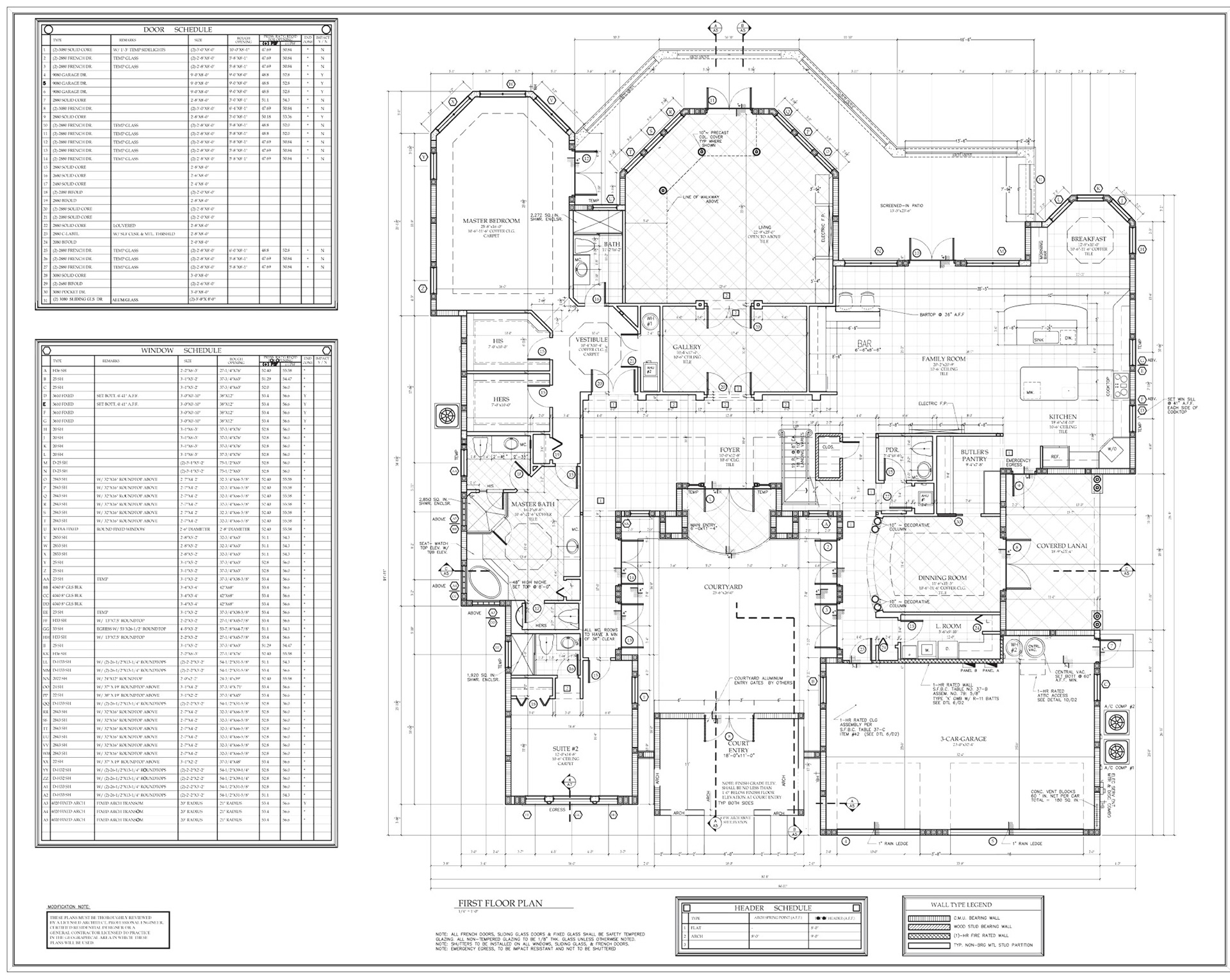
FIRST FLOOR
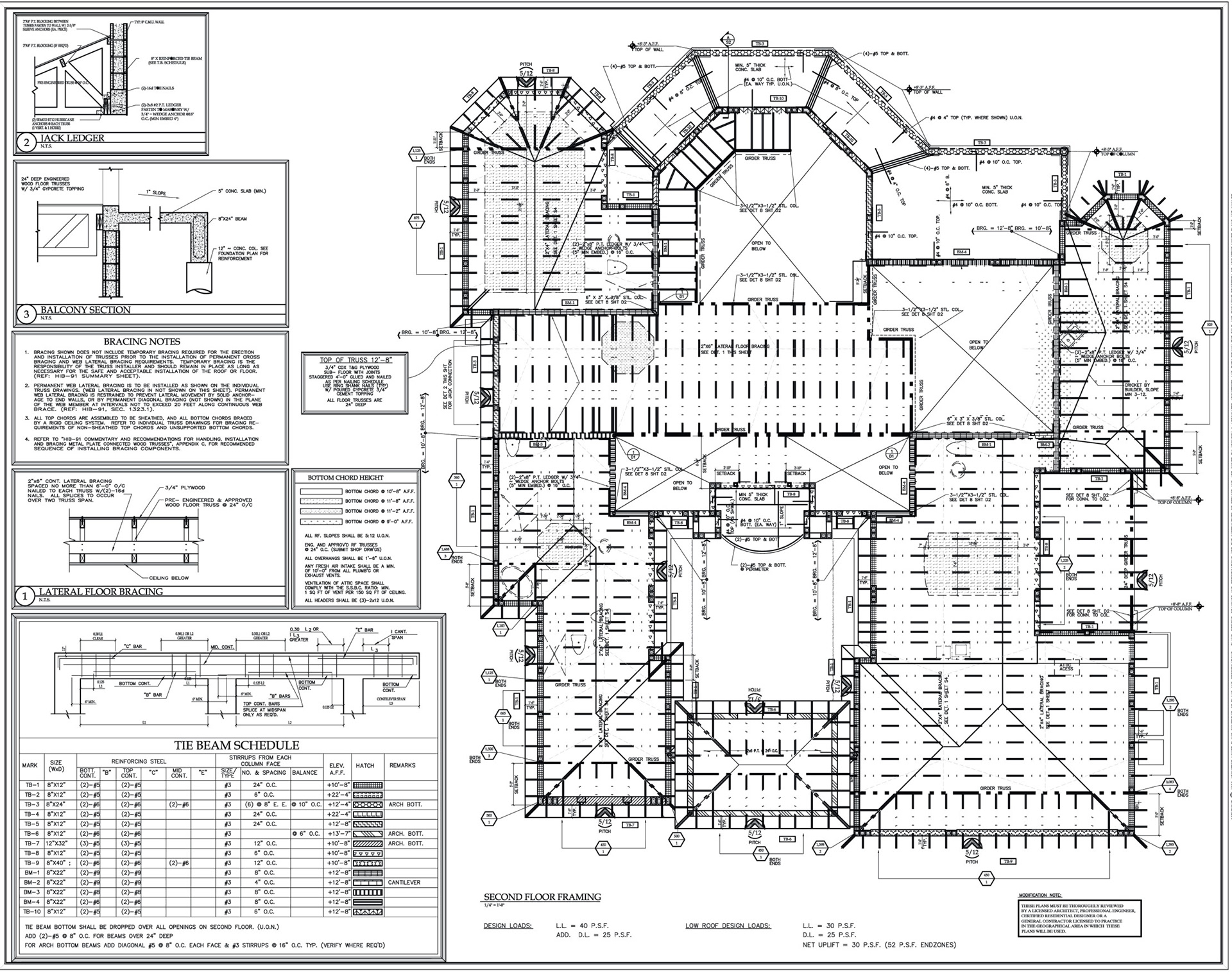
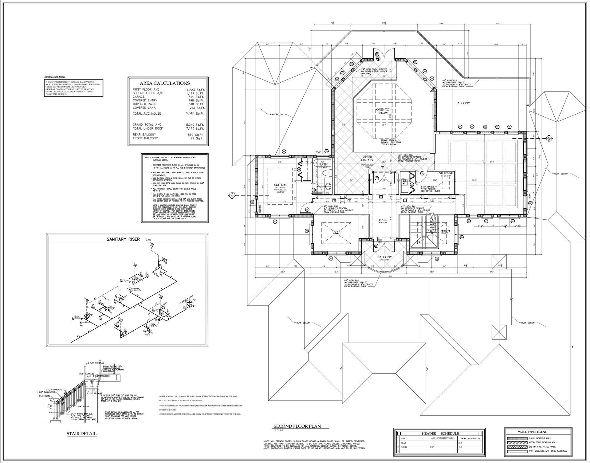
SECOND FLOOR
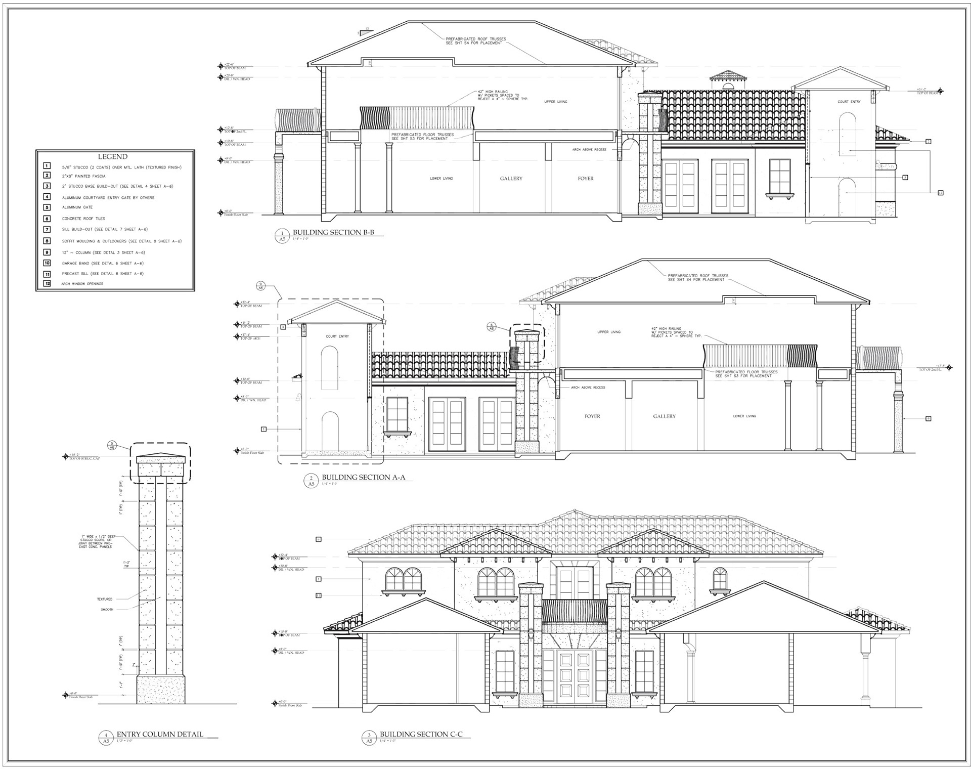
ELEVATIONS
SECTIONS
FOUNDATION PLAN
STRUCTURE PLAN: CEILING
You may also like
ART INSTALLATIONS
2017
Construction Documentation
2017
Design Competitions
2021
LANDSCAPE & URBAN DESIGN
2020
RENDERING PERSPECTIVES
2018
RESIDENTIAL DESIGN
2019
↑
Back to Top